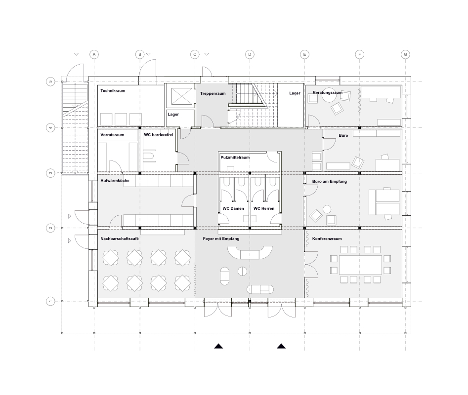
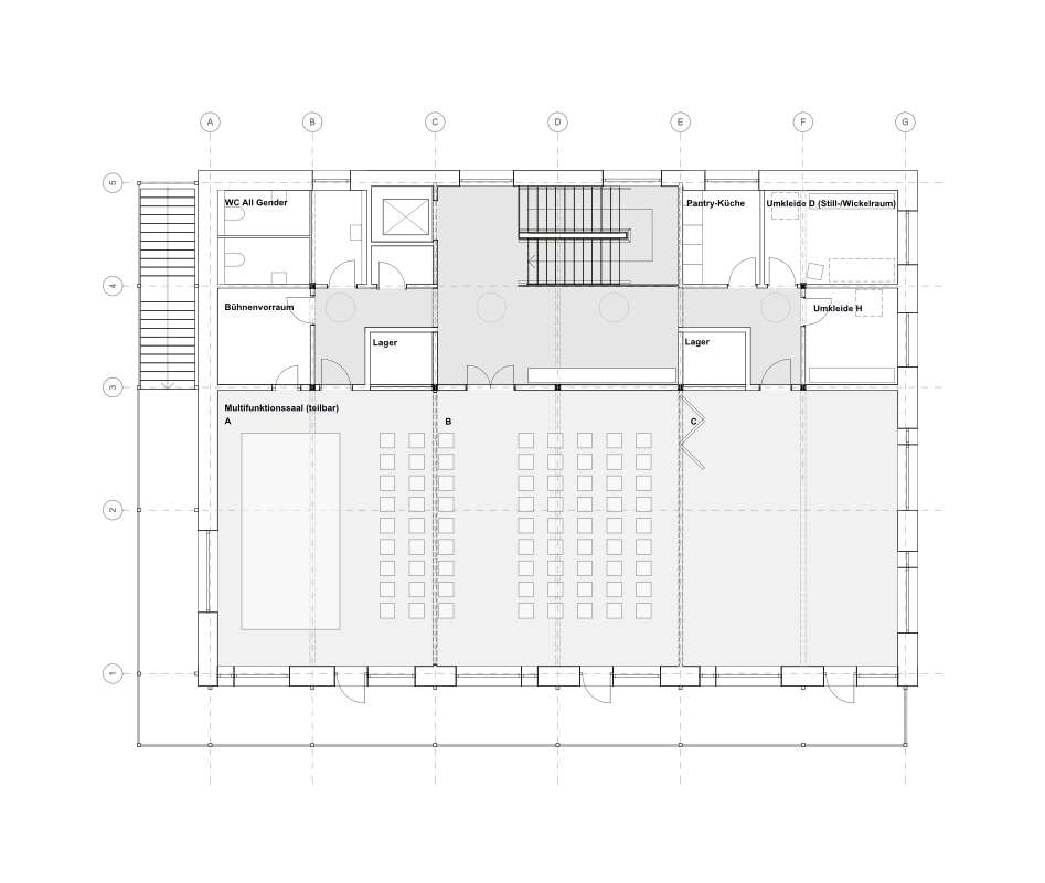
Multifunktionsgebäude
Sportanlage Kandinskyallee
Hamburg Billstedt, Germany
ca 800qm BGF Cradle 2 Cradle Holzbau
Status: In Planung
ArGE mit THERRA
Team Carolin Renno, Merle Jelitto, Kyoungbeen Park, Dalya Ortak, Kim Finster, Christian Pälmke, Sophie Hallek, Paul Schägner, Tobias Herr











